Garden State Plaza - Bonobos

Bringing a Fun Brand to Life

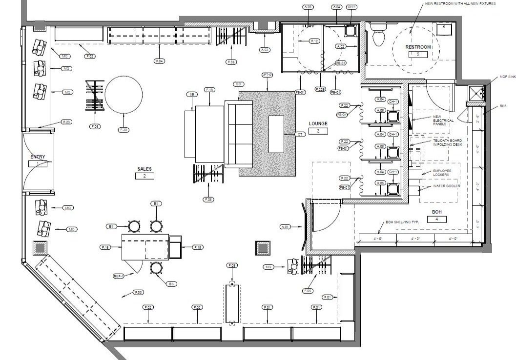
For a new Bonobos location in North Jersey, creating a cohesive space that expressed the brand’s identity was paramount in this quirky footprint. Field conditions restricted the ceiling height but by keeping the space entirely open and bright, the store has a warm and inviting feel.

As the menswear brand was looking to increase brand awareness, I designed custom graphics throughout the store to draw customers in. This pattern, inspired by a print the brand had used previously, helps give passerbys an instant idea of what the brand is all about. By using it on both the storefront and deep within the space, the shop maintains one language.

Previous
Previous

East Lane - Starbucks